이미 아파트를 이쁘게 고쳐서 살고 있었지만 단독주택의 꿈을 버릴 수는 없었습니다. 물론 지금 당장 단독주택으로 이사 갈 것은 아니어도 언젠가는 그 꿈을 이루고 싶었기에, 아내와 저는 토요일마다 서울의 곳곳을 돌며 부동산 데이트를 다녔습니다.
그렇게 몇 달을 돌다 보니 기준이 정해졌습니다. 둘만 살집, 클 필요는 없고 오히려 아담했으면 좋겠고, 교통과 치안이 좋은 곳, 그리고 작게나마 마당이 있는 그런 집. 하지만 기준이 있다고 하더라도 가지고 있는 예산 안에서 해결을 해야 했기에, 우리 부부는 언젠가는 알맞은 집이 우리 앞에 나타나겠지 하는 생각으로 서두르지 않고 집 보기가 아닌 데이트를 하러 다녔습니다.
그러다 한 지하철역 인근에 있는 이 집을 발견했습니다. 부동산 사장님 말로는 이미 여러 사람이 보고 갔지만, 너무 노후된 탓에 선뜻 사겠다고 나서는 사람이 없었다는 설명을 들으며 집을 보게 되었고 그렇게 이 집과의 인연이 시작되었습니다.




건물형태: 단독주택
가족형태: 신혼부부
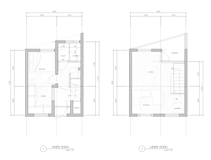
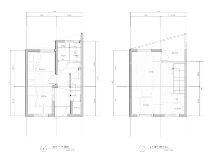
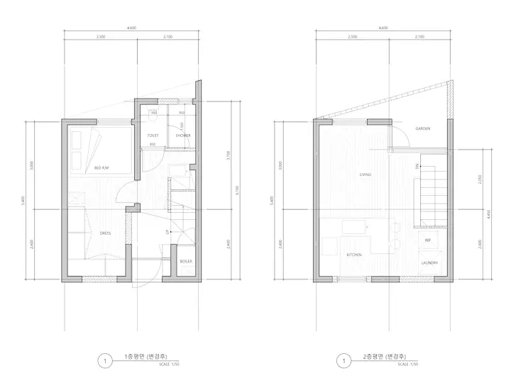
평 수: 12평
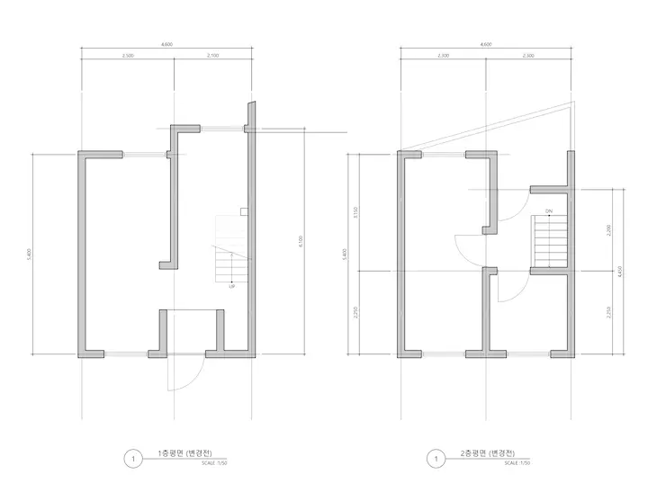
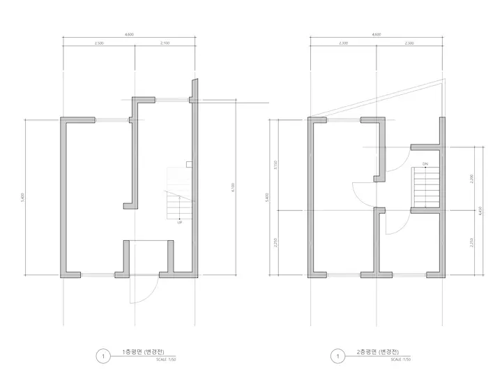
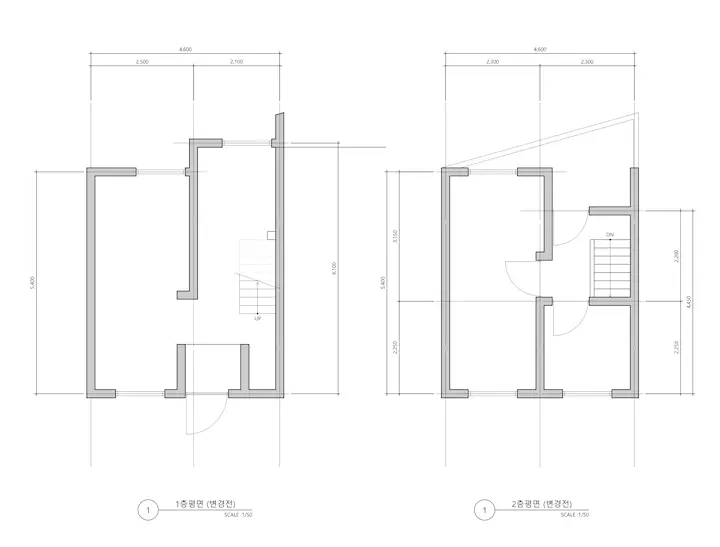
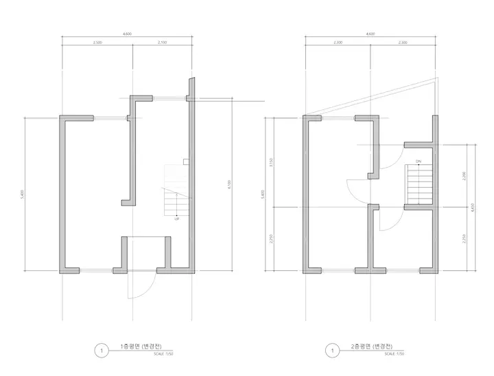
도면
1층은 채광의 확보가 어려운 만큼 과감하게 개방성을 포기하고 효율과 기능성 위주로만 공간을 구성하고, 2층은 마당을 활용하여 채광과 개방감을 만끽할 수 있는 거실과 주방 위주로 공간을 구성했습니다.
또한 좁은 집의 특성상 효율적인 수납이 중요하므로 붙박이 가구 하나하나 직접 설계하여 우리 부부 스타일에 가장 적합한 수납공간을 마련하기에 집중했습니다.


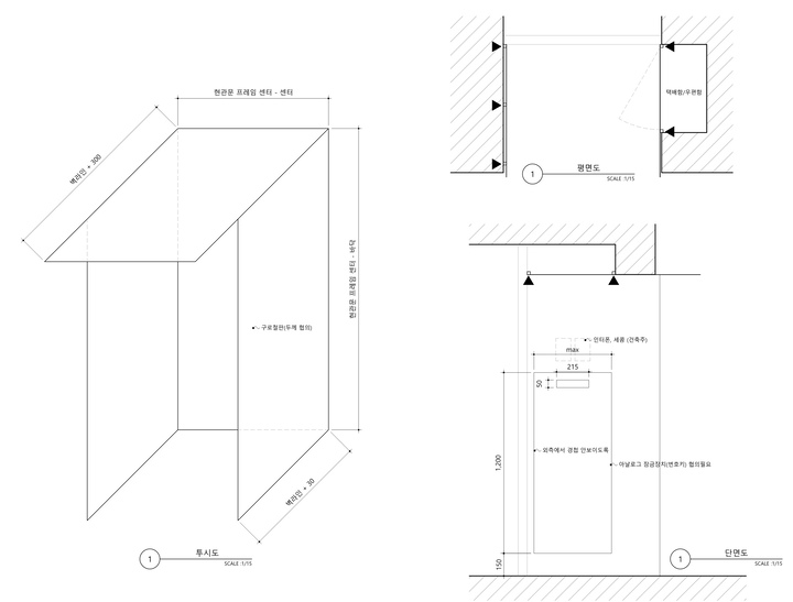
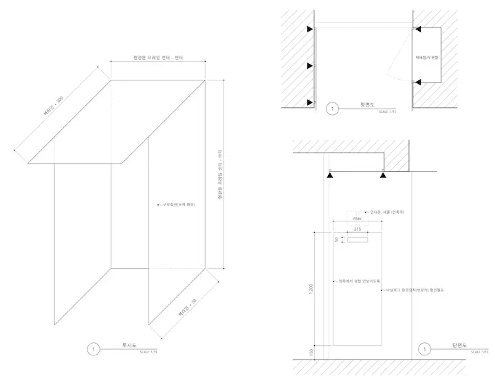
외관(택배함)
기존의 외관에서 가장 마음에 안 들었던 분홍 분홍한 타일 위에 미장을 해서 깨끗한 노출 콘크리트 느낌을 내보았습니다. 또한 정면이 북향인 탓에 적은 양의 채광을 확보하는 것보다는 보안과 프라이버시를 확보하는 것이 맞다고 생각되어 개구부를 과감히 포기하고 창문을 줄였습니다.
그러고 나니 집이 너무 심심해 보여 양재 꽃 시장에서 남천 몇 그루를 화분에 담아와서 집 앞에 화단을 만들어 집의 인상을 환하게 만들어 보았습니다.



아파트처럼 택배를 맡아줄 경비실이 없는 단독주택인 만큼 별도의 택배함이 필요했습니다. 그래서 기존의 현관문을 들여 넣고 택배함을 만들었습니다. 그 덕에 입면에 깊이감이 생기고 우산 접을 공간이 생겼습니다.

현관
현관을 들어섰을 때 바로 거실이 나타나면서 개방감이나 깊이감을 주는 것이 일반적이지만, 이 집의 구성상 일반적인 방법은 포기하고 1층의 시야에서는 최대한 잡동사니가 보이지 않고 마루와 흰 벽만 보이게 구성하고 바로 옆의 계단에서는 2층의 빛이나 웅성임이 느껴지도록 방향을 계획했습니다.

사진에 보이는 정면의 문은 욕실, 왼편은 침실입니다.

계단이 시작되는 우측벽과 계단 하부의 벽은 보일러실겸 창고로, 도어는 푸시형식으로 돌출부 없이 마감했습니다.

거실
2층에 올라오면 마당과 함께 바로 거실이 펼쳐집니다. 현관에서의 답답하고 어두웠던 인상과는 대비되도록 천장도 높이고 남쪽의 마당으로 큰 창을 배치해서 환하고 아늑한 공간으로 꾸몄습니다.



구아바 나무는 양재 꽃 시장에서 샀고, 셀렘은 친구에게 선물 받았습니다. 턴테이블이나 LP들을 놓을 오디오 장을 알아보다가 필요한 크기에 딱 맞는 작은 오디오 장은 없어서 목봉과 아크릴판을 이용해서 직접 만들었습니다.




계단 참에 놓은 붓글씨가 쓰인 목판은 이 집의 대들보에 있던 상량판입니다. 1963년도에 지어졌고 다섯 가지의 복과 세 가지 빛이 같이 하라는 의미인데, 집에 좋은 기운을 가져다줄 거 같아 고이 모셔두었습니다.

마당(베란다)
마당을 보면 가장 먼저 유리블럭이 눈에 띕니다. 원래는 루버를 설치해서 외부의 시선을 차단하려 했는데 예상보다 뒷집과의 거리가 너무 가까워서 루버로는 의미도 없을 거 같아 우리집에 어울릴 자재를 찾다가 유리블럭을 고르게 되었습니다. 건축 일을 하면서도 써보지 못했던 자재라 반신반의했었는데 시선 차단과 채광에 모두 성공한 듯해서 뿌듯한 선택 중 하나입니다.




마당의 바닥을 무엇으로 할지도 고민이 많았습니다. 원래 마당 공간은 이전 주인이 오래전부터 불법 확장해서 화장실로 쓰고 있었던 만큼 레트로한 타일이 바닥에 붙어있었습니다. 그래서 그 타일을 그대로 두고 마당을 꾸며보려 했는데, 타일과 바닥이 깨져서 1층 천장으로 물이 새어 들어오고 있었습니다. 어쩔 수 없이 타일을 포기하고 방수공사를 한 뒤에 화산석으로 가득 채우고 대나무를 놓아 차분한 느낌을 주었습니다. 대나무도 양재 꽃 시장에서 사온 아이들인데 화단을 만들고 싶었지만 오래된 집의 골조에 대나무 뿌리가 손상을 입힐까 봐 차마 시도하지 못하고 화분으로만 두었습니다.
부엌
어차피 짐이 많이 없었던 탓에 2층의 개방감을 위해 상부장을 포기했습니다. 대신 ㄷ자 배치로 하부장을 넉넉히 확보하고 한쪽으로는 상판을 더 내밀어 식탁의 역할도 겸하도록 했습니다. 바 체어는 기성제품 중에는 저희가 딱 원하는 제품을 찾기 힘들어서 학동역 쪽에 주문 제작 가구 전문으로 하는 곳에서 의뢰를 맡겨서 받아왔습니다.





침실
1층의 침실은 최대한의 공간 활용을 위해 붙박이장과 붙박이 침대를 설치하였습니다. 침대는 이전 집에서와 마찬가지로 직접 만들었는데, 자잿값을 아껴보겠다고 일반 합판이 아닌 코어 합판을 써봤는데 하필 벌레 먹은 나무였는지 어느 순간부터 권연벌레들이 득실... 결국 철거하고 일반 합판으로 다시 만들었습니다. 역시 싼 게 비지떡... 침실에는 한쪽에만 창이 있는 탓에 환기가 잘 안될까 봐 창 반대편 쪽으로 환기팬도 설치하였습니다.




화장실
화장실을 효율적으로 사용하기 위해 세면대는 외부로 빼내 건식으로 활용하고, 화장실은 샤워실과 변기만 배치하여 넉넉하게 사용하도록 했습니다. 벽 타일은 작은 화장실에 큰 사이즈의 타일을 적용해서 깔끔한 스타일로 정리했습니다. 특히 바닥은 매지 청소의 불편함을 덜기 위해 컬러 콘크리트를 적용해서 하나의 면으로 만들었습니다.


우당탕탕 단독주택에 살기 시작한 지도 벌써 4달이 지나갑니다. 그동안 주변으로부터 가장 많이 받은 질문은 '단독주택에 살면 어때?'였습니다.
단독주택 라이프에는 로망도 있지만 그만큼 직접 고민하고 힘써야 할 일도 늘어납니다. 하지만 반대로 생각하면 내가 고민하고 힘쓴 만큼 내 집과 내 환경을 가꿀 수 있다는 이야기도 됩니다.
집이 심심해 보이는 만큼 꽃 시장에 가서 식물을 찾아보고, 나에게 필요한 사이즈의 오디오 장이 필요하면 만들어도 보고, 계속해서 조금씩 옮겨보고 정리하고 만들면서 나만의 생각과 손길이 담긴 장소에서 산다는 것.
그리고 그것이 습관이 되고 가치관이 되면서 주체적인 삶을 살아간다는 것. 물론 이런 것이 단독주택에서만 느낄 수 있는 것은 아니겠지만, 우리 부부는 이곳에서 그러한 삶을 배워 나가고 있습니다. 끝까지 읽어주셔서 감사합니다~!
댓글