건축주의 선택 또는 환경을 고려해 단층 주택이 적절하다고 판단한 다양한 사례를 소개한다.
글 백홍기 기자
자료출처 전원주택라이프 DB

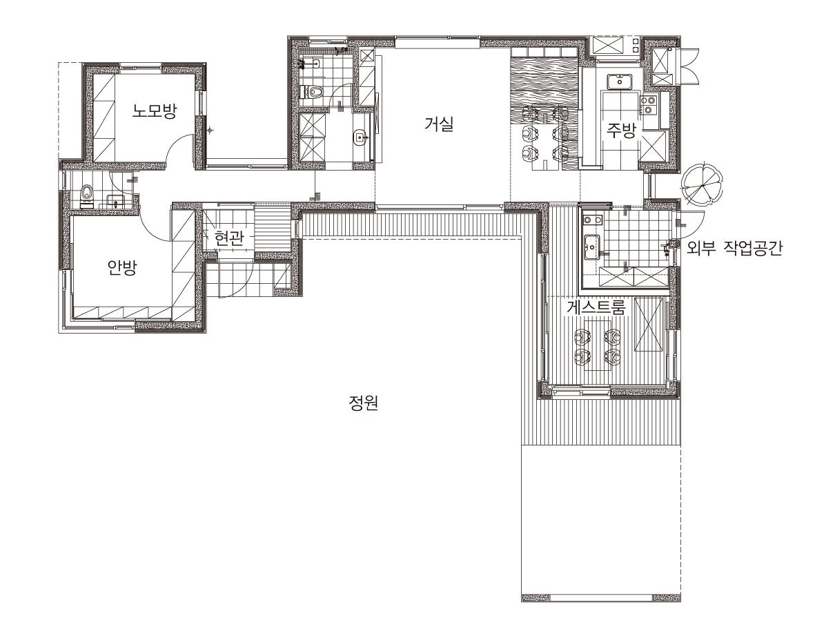
넓은 대지에 지은 3대가 사는 단층 주택
토지 가격이 높은 도심에선 공간을 수직으로 활용할 수밖에 없다. 하지만, 토지 가격이 낮은 도시 외곽이나 시골에 집을 짓는다면, 경우에 따라 수평으로 공간을 넓이는 게 비용을 줄이거나 효율적일 수 있다. 또, 도심과 다르게 필지도 보통 495~660㎡(150~200평) 이상 넓게 분할해서 판매하기 때문에 건폐율이 낮아도 어느 정도 규모를 갖춘 단층 주택을 지을 수 있다.
이 주택은 건축주 부부가 노모와 자녀들과 함께 3대가 사는 주택을 계획한 것이다. 1,201.94㎡(363.58평)로 넓은 부지를 마련한 건축주는 노모를 위해 계단이 없는 단층, 가족이 저마다 취미를 즐길 수 있는 공간을 담은 주택을 요구했다. 건축가는 긴 복도를 중심으로 각 실을 매스 형태로 나눠 넓게 분산 배치해 세대별 독립성을 강화했다. 그만큼 동선은 길어졌지만, 효율성이나 편리성보다 각 공간의 개별성에 초점 맞추기 위한 합리적 선택이었다. 여기에 마당과 텃밭 등 자연 풍경을 건물 사이 공간으로 끌어들여 편안함을 담고 시선을 외부로 확장해 개방감까지 주도록 했다.

HOUSE DATA
위치 경기 용인시
건축구조 목구조
대지면적 1,201.94㎡(363.58평)
건축면적 327.58㎡(99.10평)
건폐율 27.25%
용적률 21.62%
연면적(차고포함)
317.71㎡(96.11평)
1층 259.85㎡(78.60평)
차고 57.86㎡(17.50평)
다락 60.30㎡(18.24평)
설계 ㈜푸름인건축사사무소 02-549-6610 www.purumin.com
시공 선종백




고택 허물고 신축한 소박한 단층집 아틀리에 K
오래전 건축주 부모님이 주말농장으로 이용할 목적으로 고택과 인근에 딸린 밭을 함께 사뒀다. 이후 한적한 시골 생활과 정원 가꾸는 것을 좋아하던 큰 딸이 도심 생활을 접고 이곳에 집을 짓기로 계획했다.
주택은 건축주 한 명이 상시 거주하고 어머니는 밭을 일구러 주말에만 머물며, 동생 두 명은 가끔 찾기에 규모가 클 필요 없었다. 방은 세 개면 충분했다. 거실은 가족이 다 모여 함께 어울려도 넉넉하도록 넓어야 했다. 주방은 건축주와 어머니가 사용하는 목적이 달라 두 개 필요했다. 이 외 수납과 다용도실 등 부속 공간을 더하면, 실내 면적이 150㎡(45평) 정도 필요했다. 면적이 작지 않지만, 법정 건폐율이 40%이고, 전체 토지 가운데 건축 부지로 할애한 대지가 985㎡(298평)라 단층으로 지어도 충분했다.
실내 공간은 효율성을 고려해 방은 수면을 위한 최소 공간으로 계획했다. 한쪽에 일렬로 나열한 방은 서로 간섭을 줄이기 위해 방과 방 사이에 욕실과 드레스룸을 배치해 간격을 벌렸다. 거실과 식당은 일체형으로 계획하고 천장을 높여 시원한 공간감이 들도록 했다. 멋진 풍경을 담아낸 주방과 지인들과 즐기는 파티 공간을 원한 건축주 요구에 따라 메인 주방 정면에 넓은 여닫이창을 설치하고 데크과 동선을 연결했다. 이렇게 단순 명료한 공간과 외부 연결에 초점 맞춰 아틀리에 K를 완성했다.

HOUSE DATA
위치 인천 강화군
건축구조 경량 목구조
대지면적 985.00㎡(297.96평)
건축면적 148.66㎡(44.97평)
건폐율 16.84%
용적률 16.84%
연면적
165.86㎡(50.17평)
본채 148.66㎡(44.97평)
별채(구들방) 17.20㎡(5.20평)
설계 건축사사무소 갑비고차
시공 나무집협동조합 1811-9663 https://cafe.naver.com/namoohyup




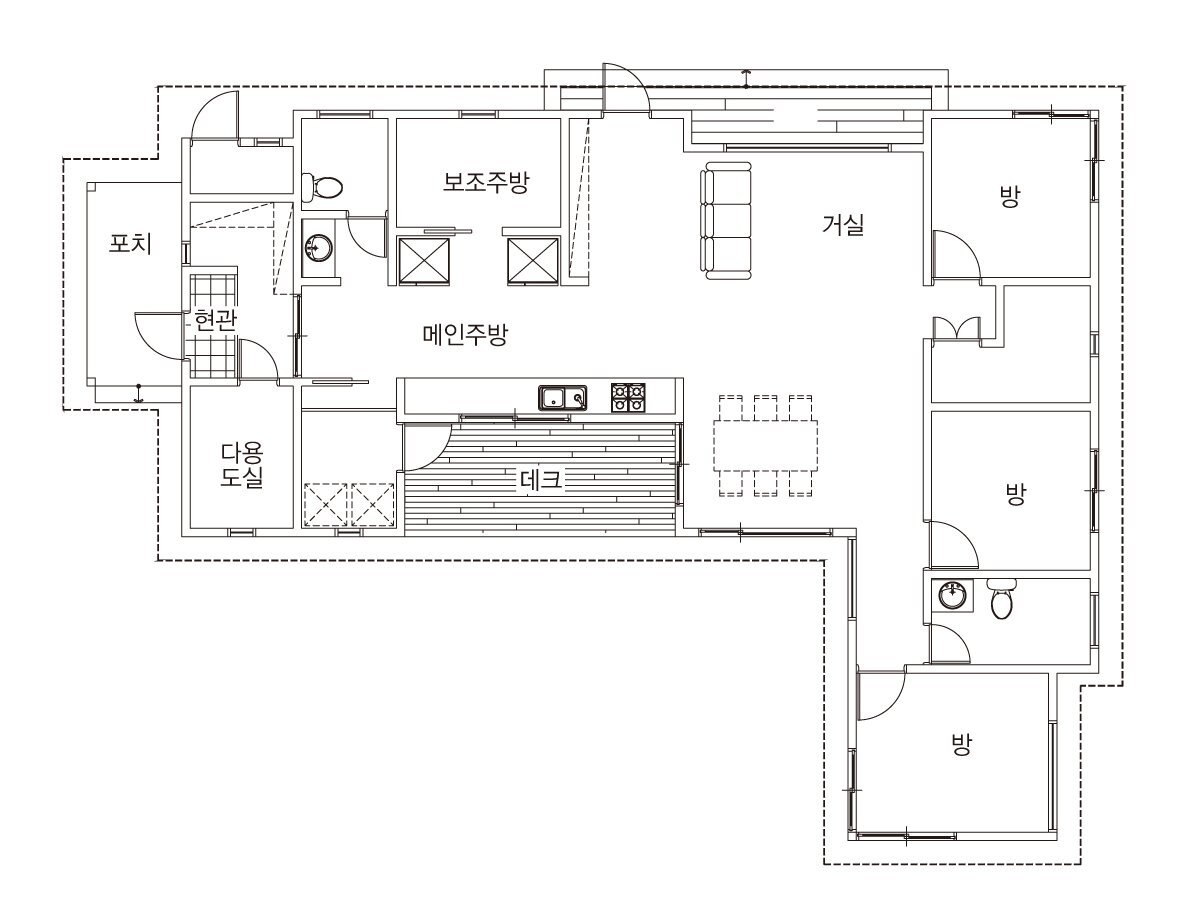
농가 생활에 맞춘 단층 주택 화담별서 和談別墅
화담별서는 자녀들이 부모님을 위해 기존 마을 사람들과 정겨움을 나눌 수 있고, 생활이 편리하며, 농가 생활에 적합한 주거 공간으로 계획했다. 기존 농가주택에 편리한 주거환경만 갖추면 됐기에 단층으로 계획하고 농가 생활에 적합하도록 기능에 충실했다.
주택 입면은 소박하고 간소한 일상을 보내는 부부의 삶에 어울리도록 단순한 형태에 경사지붕을 얹어 담백하게 표현했다. 방은 노모와 건축주 부부, 자녀들이 방문했을 때 지내도록 3개로 구성하고, 노모의 편리한 이동과 케어를 위해 현관 바로 옆에 앞뒤로 노모 방과 부부의 방을 배치했다.
노모와 부부의 방 맞은편에 공용 공간과 게스트룸을 배치한 뒤 두 영역은 복도로 연결했다. 가장 중점 둔 부분은 야외 작업 공간과의 연계다. 건축가는 작업 공간과 주거 공간이 혼재되어 집의 본질인 ‘쉼’을 잃지 않도록 마당에서 ‘작업’이라는 역할을 덜어냈다. 덜어낸 공간엔 ‘쉼’을 제공하는 예쁜 정원을 꾸몄다. 작업 공간은 건물 오른쪽에 배치해 시각과 기능적으로 주거 영역과 분리하되, 긴밀한 관계인 주방과 다용도실에서는 바로 연결되도록 만들었다.

HOUSE DATA
위치 전북 김제시
건축구조 철근콘크리트조
대지면적 660.00㎡(199.65평)
건축면적 129.96㎡(39.31평)
건폐율 19.69%
용적률 19.60%
연면적
129.38㎡(39.14평)
설계 일상건축사사무소 063-273-2313 www.ilsangarchitects.com
시공 ㈜헤세드 063-225-2080




대지 레벨 활용해 넓은 창고 확보한 단층 주택
식품공학과 교수인 건축주가 은퇴를 앞두고, 거칠지만 적당한 노동으로 맑은 정신과 건강한 육체를 유지하는 소소한 농부의 삶을 계획했다. 주택은 가벼운 삶에 맞춰 간소한 형태를 원했다. 집터는 나고 자란 고향에 마련했다. 이웃들과 안면이 있어 적응하기 수월한 점도 선택 이유다.
대지는 애초에 직사각 형태로 주택을 계획하고 필지 모양도 이에 맞춰 분할했다. 여기에 직사각형 단층에 박공지붕을 얹어 단순하고 편안한 형태로 주택을 앉혔다. 내부는 현관 중심으로 오른쪽에 가사 공간, 왼쪽에 거실과 침실을 배치했다. 자녀가 셋이지만, 방은 여유분으로 한 개만 뒀다. 처음엔 2층에 다락까지 지으려고 했지만, 1년에 300일 이상 부부만 지내는데, 너무 크면 관리가 불편할 거 같아 규모를 줄였다. 자녀가 다 모여 잠자리가 부족하면, 가까운데 좋은 숙소를 이용하고 여기선 놀기만 하면 된다고 것이다.
대지와 인접한 곳에 밭 300평도 준비했다. 농사에 필요한 각종 농기구와 비료, 수확물, 종자 등을 보관할 창고는 도로보다 3m 정도 높은 대지 레벨 차를 이용해 진입로 옆에 지하시설로 마련했다. 입구에는 폴딩도어를 설치하고 진입로는 도로와 인접했으며 앞에 넓은 공간을 확보해 물건을 옮기거나 몸체가 큰 농기구도 수월하게 드나들 수 있는 구조로 만들었다.

HOUSE DATA
위치 충북 괴산군
건축구조 경량 목구조
대지면적 889.00㎡(268.92평)
건축면적 103.49㎡(31.30평)
건폐율 11.64%
용적률 10.17%
연면적
130.59㎡(39.50평)
1층 90.39㎡(27.34평)
창고 40.20㎡(12.16평)
설계 연건축사사무소
시공 팀버하우스 043-853-4997 www.팀버하우스.kr




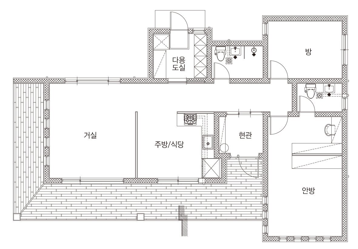
단순미에 기능 더한 ALC 단층 주택
건축주는 한옥의 아름다운 선과 멋, 특유의 정서에 이끌려 한옥을 지으려고 했다. 그러다 건축비 용이 많이 들어 다른 대안을 찾았다. 마침 ALC 주택에 살던 동생 추천으로 실용적이고 비용 대비 성능과 기능이 뛰어나며, 관리도 쉬운 ALC 구조로 선택하게 됐다.
주택 입면은 특별한 마감재 없이 밝은 흰색으로 마감한 외형이 산뜻하다. 단조로울 수 있는 외형은 안방 부분 높이를 약간 높이고 전면으로 빼내 볼륨감을 살리면서 포치와 데크로 변화를 주었다. 지붕은 건물 뒤쪽으로 살짝 물매를 두어 배수를 해결하면서 반듯한 모습으로 완성했다. 공간 배치는 현관을 기준으로 공용 공간과 사적 공간으로 나눠 사생활을 보호했다.
밝은 빛이 드는 남쪽에 거실, 주방, 침실, 현관을 배치하고 북쪽엔 다용도실과 화장실을 배치했다. 부부가 으뜸으로 꼽는 공간은 세로창을 여러 개 내 빛과 그림자를 입체적으로 담아내면서 채광과 환기를 동시에 해결한 침실이다. 전체 분위기는 편안하면서 밝고 경쾌하다. 곳곳에 설치한 긴 세로 창은 필요에 따라 여닫아 채광과 빛을 조절하는 기능을 하고, 단조로운 입면에 디자인적인 요소로 작용해 건축의 미를 완성했다.

HOUSE DATA
위치 경북 경주시
건축구조 ALC 조적조
대지면적 692.00㎡(209.69평)
건축면적 131.06㎡(39.71평)
건폐율 18.94%
용적률 18.94%
연면적
131.06㎡(39.71평)
설계 및 시공 공간기록(구 홈스토리하우스) 1544-1553 www.ggglog.com




댓글